Loja à venda na Rua da Passagem, Botafogo, Rio de Janeiro 234m²
FavoritoFavoritar
ImprimirCódigo do Imóvel NBLJ00046 157 pessoas visualizaram este imóvel
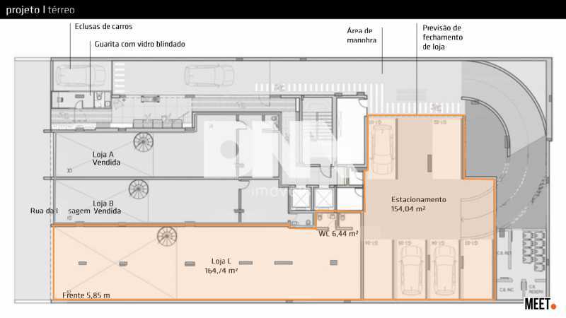
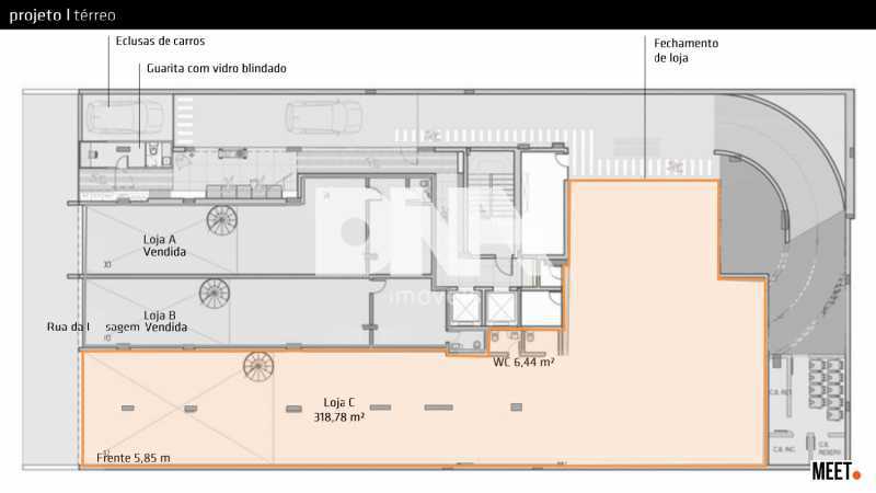
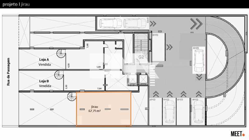
Loja
234 m² de Área Útil
234 m² de Área Total
6 Vagas
Descrição do Imóvel
lojão de 234m² , 150m² de área de estacionamento ( 6 vagas ) excelente localização .próxima ao High Light, que será entregue em breve, com 100%. Além de ser próximo à rua Álvaro Ramos (rua residencial tradicional na região)
Localização do Imóvel
Rua da Passagem, Botafogo, Rio de Janeiro - RJ
* ATENÇÃO! O mapa não reflete a localização exata do imóvel.

Entre em Contato
(*) Campos Obrigatórios(**) Pelo menos 1 campo deve ser preenchido
Para obter mais informações sobre este imóvel, por favor, preencha o formulário abaixo.
Importante!As informações apresentadas podem conter imprecisões, assim como os valores podem ser alterados a qualquer momento, sem aviso prévio, a critério dos respectivos proprietários.














